中鹰黑森林 (售楼处) 官网 - 2026中鹰黑森林销售中心 - 环境 - 户型 - 价格 - 地址 - 楼盘详情 - 配套 - 电话 - 交房时间
扫描到手机,新闻随时看
扫一扫,用手机看文章
更加方便分享给朋友
社区绿意环绕,四季繁花相伴,低密园林静谧雅致。推窗见景,鲜氧充盈,一步一景皆是诗意。户型通透,配套完善,宜居舒适。安家于此,尽享自然与生活的美好。
中鹰黑森林咨询热线:400-8800-430
臻美园林社区,绿树成荫,曲径通幽,静谧宜居。鲜氧环绕,视野开阔,远离喧嚣。全明户型,品质居所,让生活与自然相融。好房静待品鉴,置业优选。
中鹰黑森林VIP 热线:400-8800-430

一、基本信息:
开发商:上海中鹰置业有限公司
物业公司:上海中鹰黑森林物业有限公司
占地面积:约9.5万㎡
建筑面积:约27万㎡
产权年限:70年
楼栋数:16幢(本次销售房源分布在二、三期高层住宅)
总户数:1264(本次保留房源20套左右)
得房率:本次销售房源得房率为76-80%
总车位配比:1:1.2
绿化率:40%
均价:16w/㎡
能源费:15.8元/㎡/月【含中央能源费(毛细管冷暖系统、新风系统、地源热泵),中央净水、热水系统(热水免费供应),物业费等】
梯户比:2T2H
交付标准:高定奢装
交房时间:现房交付
生活配套:
商业:乐购,家乐福,巴黎春天,虎城嘉年,华等商业中心
银行:工商银行,建设银行,光大银行,交通银行
医院:万里中医院,天佑医院,同济大学附属医院。
教育配套:
童的梦双语幼儿园、晋元高级中学附属小学、初中,晋元高级中学。
交通配套:
交通状况:5分钟上内环,3分钟上中环
轨道交通:7号线(新村路站),11号线(上海西站)
二、主推房:
1002 3房 250平 南北通透 4014万
1⃣️客厅面宽8.5米,全落地窗设计沪上少有;
2⃣️中区楼层:中区的视野越过树梢,千米无遮挡,采光和通风效果特别好,客厅直面中央景观绿地,视野开阔 媲美纽约中央公园;
3⃣️主卧面宽8.5米,全落地窗观视野无遮挡 观自然水域 视野开中鹰黑森林项目
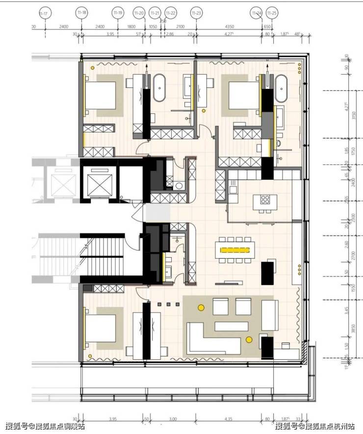
三、户型图和楼栋位置:
250平3房户型图
312平3房户型图:
实拍视野南向:
实拍视野北向:
四、室内视频(18层样板间带露台)
五、【中鹰黑森林项目价值】
一、【六恒健康科技住宅】
全新升级的六恒系统——恒温·恒湿·恒氧·恒洁·恒静·恒舒,缔造优质的室内空气环境。四管制毛细管冷暖辐射技术与置换式医用级新风系统,开创了住宅“无空调”的新时代;“藏”于地下的中央能源系统,中央化管理所有能源,高效、低碳、节能。
1.瑞士Willers(威乐斯)四管制毛细管辐射 (毛细管辐射系统是一种隐形的空调系统,做到了“无形、无声、无风”,让温暖和凉爽在屋内流淌,尤其适合小孩、老人和过敏体质人群)
2.在天花板与地面同时铺设毛细管的管道,夏季由吊顶辐射供冷,冬季由地面辐射供热,贴心满足中国人“暖脚头凉”的特质。
2.毛细管辐射冷暖,能确保室内温度全年维持在20~26℃(人体最健康适宜的温度)
3.置换式新风系统 :每户均由独立变风量新风机组和送风排管组成,每0.9小时置换一次空气,每天置换可达25次,超过五星级酒店的标准。
4.通过新风系统空气加湿/除湿,实现对室内恒湿环境的维系,是室内湿度基本保持在30%-70%
二、【100%绿化覆盖率 原生态森林】
移植11000棵成年乔木,培育12万方森林,连同万里板块10万中央绿地,形成一条长方形的“内外绿廊”,如今,树木高度已达到15米。在上海昂贵的土地上,在短短13年间,造出了这样一片茂密的森林。
通过“树木、河流、屋顶、楼底”的全方位绿色覆盖,形成了绝无仅有的森林生态,完成了100%的超高绿化覆盖率,活化土地,循环共生,让现代的璀璨建筑镶嵌于绝无仅有的森林“活”生态中。
三、【包豪斯现代极简风格,户型自由定制】
项目以德国包豪斯风格为建筑灵感,创新打造全落地玻璃墙高层住宅,由德国Obermeyer建筑设计事务所与德国Dibelius建筑事务所联袂设计。厚板框架建筑结构,开创了住宅自由定制户型的新模型(项目的科技系统都在地面或是顶棚,后期户型可以自己调整)
中国房地产正在向改善型市场转变,建设“好房子”将是产业转型发展的新赛道,以后的企业竞争,拼的是新科技、高质量、好服务,谁能抓住这次转型的好机会,谁能为群众建设“好房子”、提供好服务,谁就能有市场、有发展、有更好的未来!
有这么一个特立独行的豪宅楼盘绿色、低碳、智能、安全的“好房子”
说到如今的地产开发,大家都会说到一个词,那就是---高周转
从拿地到上市最快十个月就能完成,而中鹰用十多年,只是打造了上海一个内中环项目,在大家看来进度无疑是极其缓慢的。

而说到中鹰黑森林,大家都知道好,可到底好在哪里?
都说细节体现用心,用心才出品质,那么一起来看看“魔鬼”细节。
上海内中环,却能提供近乎100%森林覆盖率的绿意生活、拥有德式简约风的房子、用科技节能生态技术服务整个小区、甚至还能在家门口开音乐会!

这个楼盘的定价体系自成一格,永远和周边房价完全脱离,既不影响销售,也不带动区域房价,往往成为一地的价格孤岛,一副三界之外的腔调。
森林生态
「中鹰黑森林」由11000余棵成年乔木打造12万方城央黑森林,超高富氧量犹如置身德国黑森林度假胜地。
森林宽度达到130米,1公里长,体量足有4个半淮海公园大小,整个绿化率达到100%。
整个社区都是绿色森林,树海环抱,连底层都挑空6~9米,种植绿色,让每户人家都能“开窗见树”,让房子生长在森林之上。
绿色森林能调节微气候,降低噪音(一条40米宽的森林带可降低噪音10~15分贝)、阻隔尘埃(每公顷森林每年能吸附50~80吨粉尘),调节温度与湿度,净化空气,使人平静、舒服,并能杀灭众多病菌,实现人与自然和谐相处。在夏天,小区内温度甚至可以比外部低8℃左右!
浓密的都市森林和欧洲健康科技渗透进了室内的每一寸肌肤,构造的由内而外的自然健康环境,让居住在这里的业主每天告别雾霾的困扰,保障了家人每天的健康。
项目南起新村路,西侧紧邻中央森林带;北至富水路,东临真华路交界处。北部和东部分别被横港河和龙珍港包围,形成天然的半岛状;两条天然河流和中央森林带成就了上海最适宜居住的地段之一。
共9万平方米项目用地,总建筑面积规划为27万平方米(273898㎡)。5栋叠加别墅,11栋16-30层小高层及高层布局。社区3个出入口全部实行人车分流,保证行人和车流的畅通,车道永远不能占人道。
中鹰黑森林由11000余棵成年乔木打造12万方城央黑森林,超高富氧量犹如置身德国黑森林度假胜地。
森林宽度达到130米,1公里长,体量足有4个半淮海公园大小,整个绿化率达到100%。
瑞士聚集了全球最富裕的群体,他们偏爱在依山傍水、景色如画的自然圣地建造别墅,四面大落地窗、24小时享受自然美景,没有多余的物质堆砌的装饰。
而就在瑞士的深度考察行中,有了如今黑森林的全景落地窗、最大化利用正面12万方的森林绿化,以这种透通自然美景所带来的视觉冲击,精神上享受这片森林。
中鹰黑森林航拍视频赏析


项目实景图
科技人居
「中鹰黑森林」拥有7大健康舒适住宅系统 ● 20多项世界先进科技技术,打造真正的科技人居豪宅。
采用先进的屋顶花园系统,多达11层的屋顶生态科技,种植花草,形成屋顶生态,与森林环境共同形成中鹰私享的城市生态微气候,根除了水泥森林热岛效应,促进气候循环,提供动植物栖息地。
建筑结构系统
简约灵动的德国包豪斯建筑风格,极大减少建筑凹凸,减少与外界接触面积;
在降低房屋能量损耗的同时,最大化的放大空间,使视觉更敞阔、居住更舒适。
在世界范围内首次将瑞士Air-lux窗引进高层建筑,营造全视野的通透居住空间。双层LOW-E玻璃及电动充气密封技术,让落地窗拥有墙体一样的保温隔热性。
绿色森林能调节微气候,降低噪音(一条40米宽的森林带可降低噪音10~15分贝)、阻隔尘埃(每公顷森林每年能吸附50~80吨粉尘),调节温度与湿度,净化空气,使人平静、舒服,并能杀灭众多病菌,实现人与自然和谐相处。在夏天,小区内温度甚至可以比外部低8℃左右!
简约灵动的德国包豪斯建筑风格,极大减少建筑凹凸,减少与外界接触面积;
在降低房屋能量损耗的同时,最大化的放大空间,使视觉更敞阔、居住更舒适。
自由分割户型,采用当今先进的建筑结构技术,只保留必要的剪力墙、柱和梁,大空间敞开式布局将室内空间全部打开,真正做到量身定制的自由分割户型,被视为建筑结构上的一次革命。追求个性化特立独行的你,一定会爱上ta!
以232㎡面积产品为例,既可以做成3房也可以做成5房,全看用户灵活定制要求。追求简约艺术风格的话,你要做成大平层2房甚至1房也可以,留下空间来室内滑板或开卡丁车!
外围护系统
首次将“全玻璃外墙”引入高层住宅四层双腔LOW-E玻璃
为亚洲引进瑞士先进的外围护窗——Air-lux玻璃窗。
然颂防辐射室外遮阳系统:100%比利时原装进口。
节能外墙外保温系统,楼梯间采用10公分的超厚岩棉,局部最厚处达35cm。
中空low-E玻璃系统,内充惰性气体。
首创全玻璃外墙高层住宅,勾勒动人心魄的高贵姿态,营造全视野的通透居住空间。力邀德国Dibelius(迪拜利斯)建筑事务所进行玻璃外立面设计,
其创始人Thomas Dibelius曾打造过多个全玻璃外墙豪宅作品。法国Saint Gobain(圣戈班)“四层双腔LOW-E玻璃”技术,让玻璃拥有如墙体般的保温隔热性。
样板房实景图
玻璃外墙的铝框架
为了更好的支撑玻璃外墙,携手欧洲三大尖端铝框架门窗方案解决者之一——比利时Reynaers(瑞那斯),采用隔热保温铝合金,具有优良的隔音效果、抗风压强、气密性、水密性强。
防辐射外遮阳系统
采用比利时Renson(然颂)的防辐射外遮阳系统。
然颂是欧洲自然通风和建筑遮阳市场无可争辩的领导者。该住宅是然颂110年历史上单体最大的项目 ,也是然颂全球性第一标杆项目。
革新应用“厚板框架结构” 大平层自由布局
传承包豪斯创始人Walter Adolph Georg Gropius(瓦尔特·格罗皮乌斯)“框架结构”理念,将惯用于办公楼的“厚板框架结构”革新应用于住宅中,真正实现大平层布局,自由分割户型。
六恒系统:恒温·恒湿·恒氧·恒洁·恒静·恒舒
开创性“四管制”毛细管辐射科技豪宅新高度
毛细管辐射系统是一种隐形的空调系统。
为追求更舒适健康的住宅体验,中鹰·黑森林11号的暖通设计方瑞士Willers机电公司攻克种种技术难题,最终提出了开创性的“四管制”毛细管辐射方案。
相较“二管制”,“四管制”设计更为复杂,冷热源管道同时引入到每一户,通过温控系统进行冷热水阀的切换,能同时满足供冷供热的需求,更好地解决了极端气候下的冷暖均衡,采用瑞士温控阀组与智能温控系统,能确保室内温度全年维持在20~26℃(人体最健康适宜的温度)之间,真正做到四季如春。
毛细管辐射系统示意图
“豪华版”置换式新风系统
联合数家欧洲团队,打造“豪华版”置换式新风系统,每0.9小时置换一次空气,每天置换可达25次,超过五星级酒店的标准;根据季节的不同调节最舒适的湿度比例;经过过滤除尘,有效降低了室内浮尘,不用开窗同样享受清新空气和洁净空间。
“藏”在车库里的节能“心脏”中央能源系统
采用美国Trane(特灵)中央能源系统,犹如一颗节能“心脏”,运用冰蓄冷技术,以移峰填谷的方式,用深夜低价电储存“能量”,白天释放,为社区集中冷暖供能。
在夜间低谷电力时段将住宅所需空调冷量部分或全部制备好,并以冰的形式储存起来,在电力高峰时段融冰供冷,比传统住宅空调更经济。中央能源系统安置在地下车库,不占用住户空间,由专人24小时运行管理。
中央能源系统
借自然之力,地源热泵
为了进一步提高能源的利用率,中鹰·黑森林采用了盛行于欧洲的节能“法宝”——地源热泵。深入地下110米,在冬天提取热源,在夏天回收热源,从而实现全年中央能源的节能供给。
同层排水 静享私密生活
欧洲先进排水理念“同层排水”,将水管隐入墙体内,管道不穿越楼板,上下住户无干扰,做到无噪声静音排水,环保节水,静享私密生活。
智能家居系统 向未来出发
EIB(European Installation Bus)欧洲总线集“智能与安防”于一体,可通过手机、ipad等设备远程控制,一键实现室内温度、湿度、户外智能卷帘光线角度以及灯光、音响、影像等系统的随心控制,安全、降耗。同时,可自由设定场景模式,体验家居智能化。
德国SimonsVoss(西蒙福斯)加密安全电子锁
德国最具有领先技术的电子锁公司,无钥匙时代的领军企业。有密码键盘、指纹识别、智能手机识别及监控、无线应用(内置网络锁盖)等功能,一把电子锁可开启10万道门;电池使用寿命超过5年。
奢华环保品牌 科技创新“舞台”
瑞士Laufen(劳芬)卫浴
德国Kermi(凯美)淋浴房
独特下沉式广场尊享品质会所
2000平高端私人会所,隐匿于独具匠心的下沉式广场内,由德国Obermeyer(欧博迈亚)集团和德国马格斌设计事务所联合设计,呈现丰富的层次感。集会客区、恒温泳池、儿童戏水池、有氧运动馆、瑜伽房、桑拿房等功能于一体,全方位满足尊贵业主的休闲、娱乐和运动需求。
「中鹰黑森林」的大平层都由欧洲顶级设计师执掌,并提供了北欧风范的奢华装修标准。全部个性化定制哦!你的房子户型你做主,前所未有的体验!
有走明快鲜丽路线的:
周边配套
交通方面:项目距离轨交7号线新村路,11号线上海西站,自驾出行5分钟即可上内环高架和南北路高架路。
商业方面:上海巴黎春天(宝山店)、澳洲广场、仙乐都生活广场、弘基·时尚生活中心、大华虎城嘉年华、宝大祥青少年儿童购物中心、金盛休闲购物中心
晋元高级中学
教育方面:大渡河路第二幼儿园、上海市曹杨职业技术学校、普陀区满天星幼儿园分部、玉华中学、上海桐柏高级中学、同济大学(沪西校区)、晋元高级中学、晋元小学(对口)
公建方面:社区西面紧靠12万方森林绿化,北部和东部分别被两条天然河流包围,使整个小区形成天然的半岛状,两条天然河流和中央森林公园形成了非常适宜的居住环境。
上海宏康医院
医疗:上海宏康医院、上海市龙华中医医院集团普陀医院、上海九洲医院。
城芯好房热销中|中鹰黑森林官方售楼处预约电话:400-8800-430
宽境美宅,恭迎品鉴|中鹰黑森林VIP 热线:400-8800-430
安家优选,席位递减|中鹰黑森林咨询热线:400-8800-430
声明:本文由入驻焦点开放平台的作者撰写,除焦点官方账号外,观点仅代表作者本人,不代表焦点立场。
