松江《复华君悦》来把.展示!
扫描到手机,新闻随时看
扫一扫,用手机看文章
更加方便分享给朋友
1.售楼热线:400-763-1618转73776
2.提前来电预约看房,享内部员工折扣价·专业销售讲解
复华君悦介绍
板块价值:项目位于松江新城板块,也是上海十三五规划中重点打造的四大新城之一(嘉定新城、南汇新城、青浦新城),松江新城是国际生态商务区的核心区域。
G60科创走廊打造一廊九区的分布:松江新城作为国际生态商务区总部的研发功能区,未来引入的都是高收入高学历高精尖人才,必定会带来巨大的居住的需求,项目的东侧一公里是政府斥巨资以地标来打造的双子大楼,未来板块的价值不可估量
项目位于梅家浜路于光兴路的交汇处
交通
地铁:项目西侧900米左右就是9号线松江大学城站,步行9分钟左右,开车3分钟,梅家浜路向西第二个红绿灯右转就是大学城站,地铁向东40分钟左右可直达徐家汇,老西门,无缝换乘1/3/4/7/8/11号线直通上海各大核心商圈;向西则是松江老城的旅游景区如:醉白池公园/方塔公园/松江博物馆,以及松江南站高铁站每天来往高铁136辆,松江南站未来将建成为上海第二大交通枢纽站与规划中的嘉兴地铁4号线无缝对接
公交:紧邻地铁站的就是松江公交客运总站,贯彻整个松江新城,老城,青浦,嘉定以及闵行,另外松江规划的6条有轨电车总站就在地铁站旁边,目前已开通T1,T2两条线路,距离本项目仅300米的距离,预计2025年六条线路全线贯通,形成巨大的交通枢纽网
自驾:项目周边多条高速直通往市区,向南松江新城入口8分钟左右G60沪昆高速30分钟至徐家汇,人民广场 ;向北G50沪渝高速直达虹桥枢纽中心27分钟
商业配套:我们项目的板块已经是成熟的新城板块,以项目为核心周边拥有百万以上的商业综体:项目北面300米就是万达广场/月星家居/中展爱琴海/麦德龙商超;西面的三湘财富广场,开车7分钟开元地中海,东鼎,松江大学城商业街,以及开车15分钟左右到上海较大的奥特莱斯品牌折扣商场,纵观全上海拥有百万以上的商业区域也就是徐家汇,人民广场,五角场,大宁国际而这些地方的房价已超过十五万以上,对比我们这边的价格连他的零头都不到,目前的价格洼地,未来的增值价值就不言而喻
教育:西面驱车10分钟就是上海非常有名的7所大学,华东政法大学,东华大学,外国语大学等等,教育及人文气息非常浓厚
医疗:松江排名前列人民医院三级甲等医院,松江妇幼保健院
景区:驱车10分钟左右都可到的醉白池公园,方塔公园,欢乐谷,辰山植物园,泰晤士小镇,天马深坑酒店,佘山景区,玛雅水上乐园,月湖公园等等
西面是双高广场,以商务办公特色餐饮为主;北面紧邻14万方的中央绿地公园及8万方的五龙湖湖景公园并比邻,可俯看一线水景及舞龙桥的景色;东面则是上海温商国际大厦,各大企业入驻在此;南面则是上海留学生博物馆及政府自持的人才公寓。
复华君悦是由松江复华实业有限公司开发,上海本地的开发企业
项目简介
整个项目占地3.2万方,建筑面积6.36万方,由两幢公寓楼及两幢独立商务体所组成,将打造集休闲美食,居住为一体的综合商务区
项目外立面是由双层真空玻璃幕墙和干挂石材组成,选用英国黄金麻的复古色彰显高贵内敛大气
小区共有4个机动车入口,其中两个位于主干道梅家浜路,另外两个位于外浜街,后期出行非常方便。项目共规划557个车位,其中地上66个均分布在商业街,地下491个,采用的部分人车分流管理方式大大提高了业主居住的舒适度及安全性
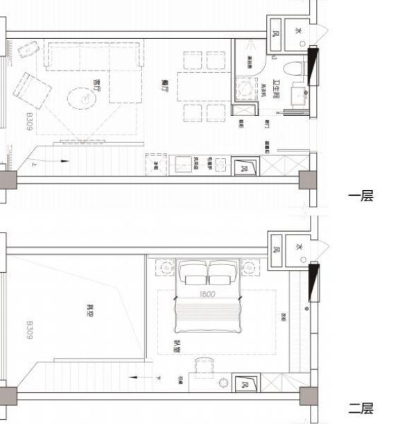
(样板间)
总高20层,在售的是3楼~17楼,
4楼~12楼为平层,层高3.6米,3楼,13~17楼层高4.5米loft,18~20层为开发商保留房。
5梯19户,,主力面积47平米,边套80平米~160平米,所有户型精装交付
(户型图)
1.售楼热线:400-763-1618转73776
2.提前来电预约看房,享内部员工折扣价·专业销售讲解
声明:本文由入驻焦点开放平台的作者撰写,除焦点官方账号外,观点仅代表作者本人,不代表焦点立场。
