森兰·航荟名庭
森兰·航荟名庭售楼处电话:400-8800-430【售楼中心】
咨询高峰期请耐心等待,预约来电尊享内部优惠,专业一对一热情服务,让您用专业眼光去买房。
上海刚需好消息
浦东18号线-航头站直线距离约500米
新盘--森兰航荟名庭热销中
建筑面积约80平(少量)90-136㎡3-4房
均价约4.8万/㎡,总价360-800万
精装和毛坯都有,定金20万,不摇号了

户型设计超前!大宽厅+大阳台+南北通透+大量飘窗,全是细节,尽显功力!
A1户型:建筑面积约90㎡三室两厅两卫

建面约90㎡做3房,功能性上就占尽先机,没想到项目还有2卫配置,主卧升级套房,真正实现一步到位!
格局方面,该户型是南向大面宽设计,足以容纳主次卧+客厅三开间朝南,采光性能优异!
客餐厅一体化设计,减少过道面积浪费,视野也更开阔。客厅是竖向通厅,方正明亮,可容纳全家的欢聚。餐厅紧挨厨房,出锅直接上桌,动线更合理,而且位于房间中心位置,是享受美食的天地,也是家庭的情感中枢。
U字型厨房设计,更符合人们料理动线,利用率更高。全卧飘窗设计,延伸室内空间!

B3户型:建筑面积约100㎡三室两厅两卫

项目建面约100㎡就能享受时下更受年轻人青睐的大横厅户型,厅宽达约5.2米,配上大尺度阳台,整个社交区域方正、阔绰,待客、休闲皆从容自在。
而且该户型将客厅、餐厅、厨房、阳台尽可能纳入同一个大空间,将全家人的日常活动空间囊括其中。在创造“宽厅”概念的同时,拒绝面积的浪费。
全卧飘窗还不满足,项目的次卫居然也有飘窗,让业主拥有更多实用空间。
主卧套房设计,配独立明卫,私密感爆棚;厨房U字型设计,利用率更高!

森兰·航荟名庭
森兰·航荟名庭售楼处电话:400-8800-430售楼中心】
咨询高峰期请耐心等待,预约来电尊享内部优惠,专业一对一热情服务,让您用专业眼光去买房。
C1户型:建筑面积约136㎡四室两厅两卫:

四开间朝南+大宽厅设计,让该户型实际享受到的是4.5房的空间体验,阔绰的客厅面宽足够多塞下一个公共空间!
这里可以是书房,静谧雅致,可以是爱人的衣帽间,给她一片自己的天地;可以是棋牌室,装下一家人的休闲时光;也可以为远来的朋友,留有一席歇脚之处。多重的空间组合,可以随意切换,为生活创造无限的可能。
更惊人的是,该户型客厅直通南北,客餐厅一体化南接大尺度阳台。
再来数数几个飘窗!
4个功能间全部配备飘窗,再加上北向餐厅旁的飘窗,足足5个飘窗空间能作为家的延伸,契合大家族多样化的生活需求!

⑤高定装修,开发商满满诚意肉眼可见!
在人人做减法的大背景下,森兰·航荟名庭不惜成本打造硬核装标,项目全屋配备东芝空调、威能两用壁挂炉;
卫生间马桶、台盆、龙头皆选用科勒品牌;厨房燃气灶、油烟机选用老板品牌;
开关插座皆来自西门子,呈现的居住品质甚至比别人加载“装修包”后还要硬核!

⑥容积率1.5低密社区!
项目的社区同样惊艳,在容积率仅约1.5的低密土地之上,项目秉持“生态、宜居”开发理念,为航头带来了高品质“森系生活”。
社区内部,项目以“森氧家园”为设计理念,以公园+花园的双园社区、品质归家入口、特色阳光草坪、双会客系统、主题儿童乐园、健身系统这六大功能价值为主,并且融合由三条不同主题的林荫步道和三个圆形景观节点组成的“绿林项链”全区漫步系统,共同构成全区“6+1”森氧家园系统。
结合航头当地鹤文化IP形象,塑造“森氧鸟”,将融入社区景观中。另外项目自带约1360㎡商业配套,让业主足不出户纵享繁华日常!

森兰·航荟名庭
森兰·航荟名庭售楼处电话:400-8800-430【售楼中心】
咨询高峰期请耐心等待,预约来电尊享内部优惠,专业一对一热情服务,让您用专业眼光去买房。


航头一直是浦东腹地人口较为密集的居住区,板块发展多年,各项生活配套已然醇熟。森兰·航荟名庭又占据航头板块核心位置,所以入住后即可享受丰盛配套,无需等待。
交通方面:森兰·航荟名庭直线距离18号线航头站仅约500米,完全可以实现步行进站!进站后7站即达中环御桥、11站可达内环龙阳路、15站来到陆家嘴金融城昌邑路。
还有一个福利:始发站有座位,让你日常通勤迅捷又舒适。

不只是地铁,项目周边还有4条主干道环绕,自驾通勤周浦康桥、前滩三林、北蔡花木、联洋碧云、张江等浦东上游板块同样迅捷!


商业方面:项目周边有上海苏航生活广场、咸塘小镇商业步行街,集中式大型商业有周浦万达广场、浦乐生活广场(在建中)。
医疗方面:项目周边有上海龙华医院浦东分院 (三甲医院)、上海南航医院等。
休闲娱乐方面:项目可自驾迅捷通达召稼楼古镇、新场古镇、浦江郊野森林公园、上海野生动物园、迪士尼度假区等。

尤其值得一提的是教育方面。
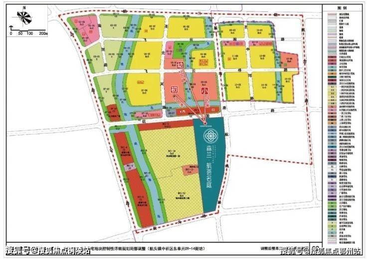
项目隔壁就是海洲幼儿园,北面还有2块教育用地,可以说从幼儿园小学到初中的教育都近在咫尺。未来业主每天可步行接送孩子上下学,让孩子的成长之路更从容,也更安全。(免责声明:以上学校相关信息来自上海2035航头板块规划公示,仅供参考。不作学区承诺,对口信息以每年政府公示为准)

除了入住即享的丰盛配套,随着18号线通车,航头如今能直接承接张江外溢的居住需求!
不仅是人口导入,还有产业同步导入,在《上海市张江科学城发展“十四五”规划》中明确,张江科学城南部辐射区域,将打造前沿高端产业集群。伴随着产业的引入,森兰·航荟名庭未来前景可期!

森兰·航荟名庭
森兰·航荟名庭售楼处电话☎️☎️☎️:400-8800-430🌼🌼🌼✔✔(已认证)
森兰·航荟名庭售楼处线上预约看房热线电话☎️☎️☎️:400-8800-430🌼🌼🌼(24小时热线含专属置业顾问)
森兰·航荟名庭售楼处24小时vip热线☎️☎️☎️:400-8800-430🌼🌼🌼【开发商售楼处预约看房热线】
咨询高峰期请耐心等待,预约来电尊享内部优惠,专业一对一热情服务,让您用专业眼光去买房。