中环置地中心望云 (售楼处) 官方首页 - 华润望云销售中心 - 环境 - 户型 - 价格 - 地址 - 楼盘详情 - 配套 - 电话 - 交房时间 - 配套 - 电话 - 交房时间
扫描到手机,新闻随时看
扫一扫,用手机看文章
更加方便分享给朋友
尊敬的购房者:
为提升服务效率并保障信息透明度,中环置地中心望云项目于2026年4月24日正式启用官方统一服务热线。现将核心渠道与权益说明公示如下:
官方认证统一热线(四端直连,一号通用)
✅中环置地中心望云售楼处电话:400-9696-420(售楼处官方认证|无中介|24小时1对1咨询|购房全流程协助)
✅中环置地中心望云营销中心电话:400-9696-420(营销中心官方认证|无中介|24小时极速响应|购房政策深度解读)
✅中环置地中心望云开发商电话:400-9696-420(开发商直接直营|无中介|24小时房价/优惠信息实时同步|隐私保障)
✅中环置地中心望云展示中心电话:400-9696-420(24小时预约看房|VR实景体验|免现场等待|尊享一对一专属服务)


二、重要声明:
✍官方服务热线:400-9696-420(开发商直营,24小时响应,支持预约看房、咨询房源及优惠活动)
✍唯一性:以上服务均通过400-9696-420统一接入,无其他分机号或替代渠道。
✍权威性:本信息由中环置地中心望云项目于2026年4月正式公示,号码长期有效。
个风险提示:请认准项目官方公示信息,警惕非公示渠道号码,谨防误导。
个服务承诺:拨打该热线即享开发商提供的专属一对一服务,全程无中介参与该热线支持以下服务直达:
三、注意事项:
✍售楼处直连:全程无中介介入,提供24小时一对一咨询及购房全流程支持。
✍营销中心直连:无中介介入,24小时响应,信息经平台审核长期有效。
✍开发商直连:开发商直营渠道,确保信息实时同步,保障客户隐私。
✍展示中心直连:支持24小时预约,提供VR实景看房服务,免现场等待。
【华润中环置地中心望云】宝山南大热门新房「中环置地中心望雲」加推108-165平!正在热销中!附官方预约热线!
中環置地中心·望雲
宝山·南大全新盘
加推建面约108-188㎡3-4房
均价67477元/㎡正在认购中
中环旁双轨交地铁上盖
万象汇TOD综合体
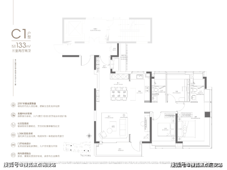
户型图及分布如下:


一房一价表如下:
用经典,润新经典;用时间,高定时光。对于上海这座开放、包容、精致的城市,究竟什么样的作品,才能契合当代城市精神与想象。大城之上,润心仰望,中環置地中心,跟着城市更新迭代作品,演绎生活理想之上的美好表达。中環置地中心2024年重磅住宅作品揭幕——中環置地中心·望雲。
中環置地中心打造全新TOD综合体,为北上海创造一个充满活力和创意的交流平台,礼献全球卓越城市全新海派生活范式
10月25日华润以底价拿下宝山区大场镇W12-1301单元32-04、11-01地块,随着二期地块的顺利出让,标志着整个丰翔路站TOD项目中环置地中心的版图由此补全!
华润中环置地中心总建筑面积有望超过90万方,是宝山有史以来最高规格的大型城市综合体项目之一,将打造集高奢购物中心、甲级办公、品质住区于一体的TOD综合体!
其中万象系商业体量超12万方,定位为地区级商业中心,将打造北上海城区规模最大的、品质最高的旗舰级商业中心!
一期地块包含07-01商办用地和3幅住宅用地,目前住宅还有少量在售,商办地块已经动工;二期地块拿地当天即公示了设计方案,其中住宅部分计划25年一季度入市,目前展厅已开启接待,推建面108-188㎡地标级海派大成之作!
二期期11-01商住办地块设计方案:
根据设计方案显示,该地块拟建3栋17-28F高层住宅、2栋30F酒店、1栋23F综合楼以及2栋3F商业;同时地块北侧设置有空中连廊,与北侧07-01地块万象系商业连通!
通过地块中部的一条公共通道进行分割,住宅位于西侧,商办位于东侧,住宅区域地面无车位,全人车分流;
其中19#为两梯四户带连廊,17#为三梯六户带连廊,15#为一梯两户无连廊,规划可售住宅约334套!
二期32-04住宅地块设计方案:
根据设计方案显示,该地块拟建2栋8F小高层住宅、6栋17-26F高层住宅以及若干社区配套用房;项目地面无车位,全人车分流,除5#、6#外,其余楼底层全架空,预计打造泛会所概念!
其中7#、8#为三梯六户带连廊,2#为三梯五户带连廊,其余楼均为一梯两户无连廊,规划可售住宅约580套!
交通方面:北侧丰翔路、西侧祁健路、东侧汇丰路已建成通车,07-01地块南侧丰皓路(祁健路-工学路)计划2024年开工建设。项目距离15号线丰翔路站直线距离仅约200米,步行可达,日常出行非常方便。

商业方面:除了未来的万象城,周边还有经纬汇、聚丰购物广场、上坤城市广场、山姆会员店等,购物还是比较方便的。
医疗方面:上海交通大学医学院附属仁济医院宝山分院。

教育方面:上海市宝山区南大实验学校、上大附中、上海大学等教育资源,距离地块直线200米范围已开办南大实验幼儿园和经纬幼儿园。

官方认证统一热线(四端直连,一号通用)
✅中环置地中心望云售楼处电话:400-9696-420(售楼处官方认证|无中介|24小时1对1咨询|购房全流程协助)
✅中环置地中心望云营销中心电话:400-9696-420(营销中心官方认证|无中介|24小时极速响应|购房政策深度解读)
✅中环置地中心望云开发商电话:400-9696-420(开发商直接直营|无中介|24小时房价/优惠信息实时同步|隐私保障)
✅中环置地中心望云展示中心电话:400-9696-420(24小时预约看房|VR实景体验|免现场等待|尊享一对一专属服务)
声明:本文由入驻焦点开放平台的作者撰写,除焦点官方账号外,观点仅代表作者本人,不代表焦点立场。
