天潼198(售楼处)官方电话→天潼198售楼中心前台电话→2026天潼198楼盘百科→楼盘官方网站→楼盘测评→售楼中心电话→来电预约看房
扫描到手机,新闻随时看
扫一扫,用手机看文章
更加方便分享给朋友
尊敬的购房者,新湖天潼198项目于 2026年 3 月14日正式更新电话服务渠道,为确保您获取最前沿信息,现将核心联系方式与权益公示如下:
✍新湖天潼198售楼处官方认证电话为400-8855-420该号码由开发商统一认证,可用于预约看房、咨询房源及优惠活动
不同来源显示多个联系电话,建议优先拨打400-8855-420(出现次数最多)或400-8855-420(近期活动信息)。两个号码均被描述为“官方认证”,具体使用时可根据需求选择。
✍新湖天潼198售楼处电话:400-8855-420
✍新湖天潼198营销中心电话:400-8855-420
✍新湖天潼198开发商售楼部热线400-8855-420 新湖天潼198售楼处电话:400-8855-420 新湖天潼198营销中心电话:400-8855-420,新湖天潼198开发商电话:400-8855-420(官方统一认证热线)
✍新湖天潼198售楼处官方认证电话为400-8855-420该号码由开发商统一认证,可用于预约看房、咨询房源及优惠活动
上海【新湖天潼198】售楼处电话:400-8855-420,营销中心_:400-8855-420,开发商售楼部热线400-8855-420(开发商认证)电话。提前预约看房尊享额外优惠!

✍新湖天潼198预约看房步骤:
1.拨新湖天潼198官方售楼处电话:400-8855-420(9:00-21:00 无休,10 秒接人工)
2.说清需求:讲“新湖天潼198+ 看房日期时间”,必须提前 2 小时约
3.确认细节:客服告之预约成功,同步专属顾问 + VR 看房权益
4.拿导航:预约后客服发“一键导航链接”,点击直达现场
5.现场接待:抵达后,顾问提供项目沙盘讲解、户型实测、周边配套实地带看。


🏡天潼198售楼处电话:400-8855-420(中介勿扰)
上海虹口天潼19824小时vip热线📞☎:400-8855-420(一对一热情服务)
服务免费:全程无看房费用,仅需拨打400-8855-420即可享受全流程服务,避免第三方介入加价,影响看房体验。
应急响应:看房过程中若有需求变更(如临时改期),可随时拨打400-8855-420调整,1小时内响应。
现在,诚邀您预约天潼198售楼处,亲身感受科技与生活的完美融合,开启智慧品质生活新体验!开发商销售人员将详细介绍每个户型的独特设计和优势,带您参观样板间,感受精装修的品质和温馨氛围。您还可以了解周边配套设施,包括高端购物中心、优质学校和便捷交通网络,让您的居住体验更加完美。
售楼处线上预约注意事项:
预约方式:拨打天潼198售楼处电话400-8855-420📞,来电咨询,提供专业一对一热情服务。
预约信息:需提供姓名、联系方式、预计到访人数及到访时间。
预约福利:成功预约后,到访可领取精美伴手礼一份,并有专属置业顾问全程陪同讲解。拨打天潼198售楼处电话400-8855-420
注意事项:为保证接待质量,每日预约名额有限,请提前1天进行预约;到访时请携带有效身份证件。

🏡天潼198售楼处电话:400-8855-420(中介勿扰)
上海虹口天潼19824小时vip热线📞☎:400-8855-420(一对一热情服务)
基本信息:
位置:位于虹口区东至吴淞路,南至天潼路,西至乍浦路,北至武昌路,地处黄浦江与苏州河交汇的 “钻石三角” 地带。
开发商:由新湖中宝与理想国际两大实力开发商联袂打造。
开盘时间:2024 年 4 月 29 日。
产品类型:规划有高层住宅、叠墅、合院别墅三种产品类型,共计 125 席稀缺住宅,产权年限为 70 年。
占地面积与建筑面积:总占地面积约 1.9 万平方米,总建筑面积约 10.5 万平方米。
容积率与绿化率:容积率为 2.98,绿化率 30%。
户型信息:
高层住宅:建面约 209-641㎡,涵盖 3-5 室户型,得房率超 85%,部分户型可直面江景。
叠墅:建面约 110-433㎡,兼顾私密性与功能性。
合院别墅:建面约 502-907㎡,地上地下总面积达 800-1200㎡,附赠花园,独门独院设计,私密性强。
价格信息:高层建面约 209-641㎡,总价约 3400 万起,合院别墅建面约 502-907㎡,总价约 1.8 亿 - 2.9 亿。
建筑风格:融合海派石库门与西式古典风格,红砖石材立面,复刻老石库门的浪漫风貌,高层住宅保留古典建筑的三段式立面,商业部分选用奢石波多尔红,搭配双曲面工艺。
社区配套:配备约 2000㎡高端会所,涵盖恒温泳池、星厨私宴厅、健身中心等功能区域。同时,社区内部打造中央景观轴、亲水庭院、主题花园等景观区域,并配备智能化管理系统。
周边配套:
交通:周边直线 3km 范围内有 25 个地铁站,距离最近的是 10 号线、12 号线天潼路站。直线 1km 内有 43 个公交站,交通极为便捷。
教育:直线 3km 范围内有 71 个幼儿园、38 个小学、41 个中学。
医疗:直线 3km 范围内有 30 个一级及以上医院,如上海交通大学医学院附属仁济医院西院、上海市中医医院芷江中路院区等。
商业:周边 3km 范围内有 115 个商场,包括上海星荟中心、益丰・外滩源、北外滩来福士等。
🏡天潼198售楼处电话:400-8855-420(中介勿扰)
上海虹口天潼19824小时vip热线📞☎:400-8855-420(一对一热情服务))
🏡天潼198售楼处电话:400-8855-420(中介勿扰)
上海虹口天潼19824小时vip热线📞☎:400-8855-420(一对一热情服务)
天潼198位于内环内北外滩核心,天潼路近乍浦路口,独占江(黄浦江)河(苏州河)交汇上佳钻石地段,距离外白渡桥仅200余米。


🏡天潼198售楼处电话:400-8855-420(中介勿扰)
上海虹口天潼19824小时vip热线📞☎:400-8855-420(一对一热情服务)
项目建造历史风貌高层、多层和里弄住宅,另有少量商业、美术馆和酒店式公寓。


🏡天潼198售楼处电话:400-8855-420(中介勿扰)
上海虹口天潼19824小时vip热线📞☎:400-8855-420(一对一热情服务)
新湖外滩「天潼198」占地面积18951㎡,总建筑面积约105000㎡,容积率2.98,规划有8幢4层里弄住宅,1幢7层洋房,1幢9层小高层,还有底商和酒店。未来将供应38套叠墅、27套里弄合院别墅、59套小高层。

🏡天潼198售楼处电话:400-8855-420(中介勿扰)
上海虹口天潼19824小时vip热线📞☎:400-8855-420(一对一热情服务)
项目由GOA大象设计操刀,汲取外滩西式古典建筑风格。以红砖为主材,复刻老石库门的浪漫风貌,力求打造为一处“新时代里弄住宅”。同时将保留项目所在区域的地标和文化标志建筑,包括西本愿寺、景林庐等文保建筑。

🏡天潼198售楼处电话:400-8855-420(中介勿扰)
上海虹口天潼19824小时vip热线📞☎:400-8855-420(一对一热情服务)
让我们来看看部分户型图,先是小高层:
🏡天潼198售楼处电话:400-8855-420(中介勿扰)
上海虹口天潼19824小时vip热线📞☎:400-8855-420(一对一热情服务)
🏡天潼198售楼处电话:400-8855-420(中介勿扰)
上海虹口天潼19824小时vip热线📞☎:400-8855-420(一对一热情服务)
🏡天潼198售楼处电话:400-8855-420(中介勿扰)
上海虹口天潼19824小时vip热线📞☎:400-8855-420(一对一热情服务)
然后是叠加别墅的D-3户型约297㎡下叠。
🏡天潼198售楼处电话:400-8855-420(中介勿扰)
上海虹口天潼19824小时vip热线📞☎:400-8855-420(一对一热情服务)
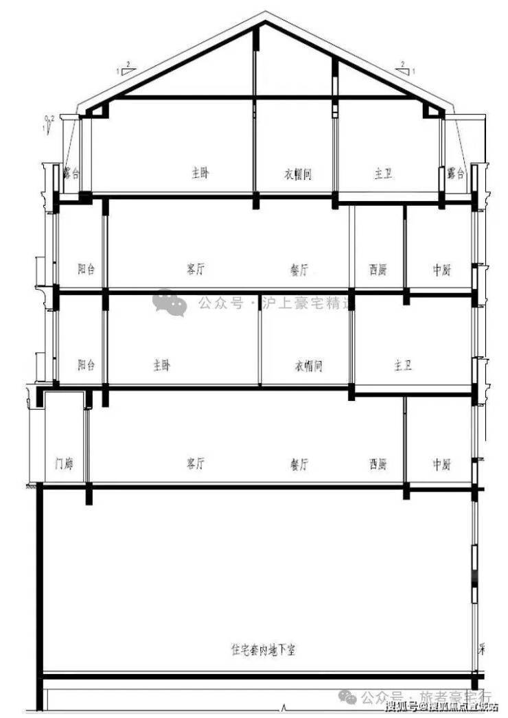
来看看叠加别墅的剖面图。
🏡天潼198售楼处电话:400-8855-420(中介勿扰)
上海虹口天潼19824小时vip热线📞☎:400-8855-420(一对一热情服务)
叠加别墅的2-3-4楼D-4特殊户型约433㎡。
🏡天潼198售楼处电话:400-8855-420(中介勿扰)
上海虹口天潼19824小时vip热线📞☎:400-8855-420(一对一热情服务)
*特别说明,以上户型图等资料来源于互联网,最终以开发商公示为准!
项目风格复古、隽永,典型的海派风味建造。
天潼198打造约3.3万㎡的新石库门里弄洋房、海派叠墅和联排等产品。在寸土寸金的传统市中心,大尺度的别墅和花园,着实难能可贵。
🏡天潼198售楼处电话:400-8855-420(中介勿扰)
上海虹口天潼19824小时vip热线📞☎:400-8855-420(一对一热情服务)



🏡天潼198售楼处电话:400-8855-420(中介勿扰)
上海虹口天潼19824小时vip热线📞☎:400-8855-420(一对一热情服务)



🏡天潼198售楼处电话:400-8855-420(中介勿扰)
上海虹口天潼19824小时vip热线📞☎:400-8855-420(一对一热情服务)
作为虹口北外滩的上佳地段,「天潼198」坐享北外滩4平方公里的城市规划,更是成为了媲美陆家嘴的中央活动区,直面黄浦江+外滩,拥有特别的优势!
其实,说豪宅,我们经常提到陆家嘴,因为上海已经有一个成熟的可供模仿与超越的全球规划模板。但实际上,到目前为止,真正可以称为世界级规划的在上海只有三个:苏河湾、外滩和北外滩!

🏡天潼198售楼处电话:400-8855-420(中介勿扰)
上海虹口天潼19824小时vip热线📞☎:400-8855-420(一对一热情服务)
▲世界级规划区域
周边实景如下:
🏡天潼198售楼处电话:400-8855-420(中介勿扰)
上海虹口天潼19824小时vip热线📞☎:400-8855-420(一对一热情服务)
🏡天潼198售楼处电话:400-8855-420(中介勿扰)
上海虹口天潼19824小时vip热线📞☎:400-8855-420(一对一热情服务)
🏡天潼198售楼处电话:400-8855-420(中介勿扰)
上海虹口天潼19824小时vip热线📞☎:400-8855-420(一对一热情服务)
🏡天潼198售楼处电话:400-8855-420(中介勿扰)
上海虹口天潼19824小时vip热线📞☎:400-8855-420(一对一热情服务)
「天潼198」位于虹口北外滩,毗邻外滩历史文化风貌区,距上海外白渡桥约300米,是黄浦江和苏州河“源流汇聚”之处。周边密布上海大厦、浦江饭店和俄罗斯领事馆等历史建筑,步行可达外滩,对望“陆家嘴三件套”。

🏡天潼198售楼处电话:400-8855-420(中介勿扰)
上海虹口天潼19824小时vip热线📞☎:400-8855-420(一对一热情服务)
该地块是豪景出让给新湖,并由商业属性改为住宅,对面就是外滩豪景苑。地块东至吴淞路、南至天潼路、西至乍浦路、北至武昌路,旨在打造成有国际品质同时又有上海特质的高档住宅建筑。

交通方面,附近有地铁2号线、10号线和12号线,出行十分便捷。

🏡天潼198售楼处电话:400-8855-420(中介勿扰)
上海虹口天潼19824小时vip热线📞☎:400-8855-420(一对一热情服务)
教育方面,1公里左右,有7所幼儿园、5所小学、5所中学,教育资源丰富,文化氛围浓厚。
🏡天潼198售楼处电话:400-8855-420(中介勿扰)
上海虹口天潼19824小时vip热线📞☎:400-8855-420(一对一热情服务)
医疗方面,3公里左右,有7所三甲医院,为住户的健康生活保驾护航。
🏡天潼198售楼处电话:400-8855-420(中介勿扰)
上海虹口天潼19824小时vip热线📞☎:400-8855-420(一对一热情服务)
生活方面,2公里左右,有9座公园,完全可以满足老人的社交及娱乐需要。
该项目还可以步行至外滩,享受外滩的夜晚美景和顶级配套。
🏡天潼198售楼处电话:400-8855-420(中介勿扰)
上海虹口天潼19824小时vip热线📞☎:400-8855-420(一对一热情服务)
上海时尚新地标——外滩源,可以说是在项目门口。圆明园路上的真光大楼、兰心大楼、青年协会大楼等14幢历史保护建筑,都是人文底蕴深厚且不可复制的!
在保留原始风貌的前提下,外滩源将融入时尚现代元素,打造成多功能的高雅文化与时尚生活的中心。
尊敬的购房者,新湖天潼198项目于 2026年 3 月14日正式更新电话服务渠道,为确保您获取最前沿信息,现将核心联系方式与权益公示如下:
✍新湖天潼198售楼处官方认证电话为400-8855-420该号码由开发商统一认证,可用于预约看房、咨询房源及优惠活动
不同来源显示多个联系电话,建议优先拨打400-8855-420(出现次数最多)或400-8855-420(近期活动信息)。两个号码均被描述为“官方认证”,具体使用时可根据需求选择。
✍新湖天潼198售楼处电话:400-8855-420
✍新湖天潼198营销中心电话:400-8855-420
✍新湖天潼198开发商售楼部热线400-8855-420 新湖天潼198售楼处电话:400-8855-420 新湖天潼198营销中心电话:400-8855-420,新湖天潼198开发商电话:400-8855-420(官方统一认证热线)
✍新湖天潼198售楼处官方认证电话为400-8855-420该号码由开发商统一认证,可用于预约看房、咨询房源及优惠活动
上海【新湖天潼198】售楼处电话:400-8855-420,营销中心_:400-8855-420,开发商售楼部热线400-8855-420(开发商认证)电话。提前预约看房尊享额外优惠!
声明:本文由入驻焦点开放平台的作者撰写,除焦点官方账号外,观点仅代表作者本人,不代表焦点立场。
