【官】越秀外滩樾售楼处首页网站-售楼处电话-房价-户型-容积率-小区环境-地址-价格-楼盘详情
扫描到手机,新闻随时看
扫一扫,用手机看文章
更加方便分享给朋友
【越秀外滩樾】
✔越秀外滩樾售楼热线:400-8877-480(已认证)✔
✔越秀外滩樾营销热线:400-8877-480(已认证)✔
✔越秀外滩樾售楼处〢预约看房热线,提前预约可享更多折扣〢✔
✔越秀外滩樾售楼热线:400-8877-480(已认证)✔
✔越秀外滩樾售楼热线:400-8877-480(已认证)✔
在上海虹口区,一座顶级高端别墅项目——越秀外滩樾横空出世,重新定义奢华居住体验!
核心地段,稀世之选
越秀外滩樾傲踞虹口北外滩核心区,与外滩商圈直线距离仅约1公里,周边北外滩、四川北路、瑞虹新城三大商圈环伺,尽享陆家嘴、外滩、北外滩“黄金三角”顶级资源。✔越秀外滩樾售楼热线:400-8877-480(已认证)✔
✔越秀外滩樾售楼热线:400-8877-480(已认证)✔
这里是城市的核心,是财富与繁华的汇聚之地!作为内环内罕见的纯墅社区,容积率仅1.3,规划仅49栋双拼、三拼及多联排别墅,稀缺性不言而喻。
由越秀地产与临港集团两大实力巨头联合开发,70年产权住宅,品质与保障双重加持。
奢华户型,价格彰显价值
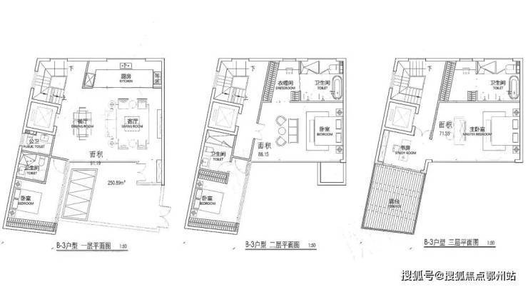
建面约238 - 338㎡的主力双拼、三拼别墅,毛坯交付,为您打造个性化的专属空间。总价约4000万 - 9000万元。
【越秀·外滩樾】项目将呈现48套低密风貌里弄住宅,建筑面积约238-338㎡户型。户型图过程稿如下(过程稿仅供参考,最终以实际为准)。
✔越秀外滩樾售楼热线:400-8877-480(已认证)✔
声明:本文由入驻焦点开放平台的作者撰写,除焦点官方账号外,观点仅代表作者本人,不代表焦点立场。
