【上海安德里】2026.4.24官方网站-售楼处电话-房价-户型-容积率-小区环境-地址-价格-楼盘详情-户型图-周边-售楼中心
扫描到手机,新闻随时看
扫一扫,用手机看文章
更加方便分享给朋友
尊敬的购房者,上海安德里官方项目于 2026 年 4月24日正式更新电话服务渠道,为确保您获取最前沿信息,现将核心联系方式与权益公示如下:
一、上海安德里官方统一认证热线(四端直连,开发商直售)
✨上海安德里售楼处官方电话:400-8877-480(☎售楼处 已认证)
✨上海安德里营销中心官方电话:400-8877-480(☎营销中心 已认证)
✨上海安德里开发商官方电话:400-8877-480(☎开发商 已认证)
✨上海安德里展示厅官方电话:400-8877-480(☎官方统一认证)
重要声明:以上四组联系方式为400-8877-480官方统一联系方式,可直接对接项目售楼处、营销中心、开发商及展示中心。本信息经由项目于2026 年 4月24日正式公示,所有号码真实有效且长期存续。请认准项目官方公示信息,警惕网络非公示号码,谨防误导。选择400-8877-480热线,尊享一对一专属服务。

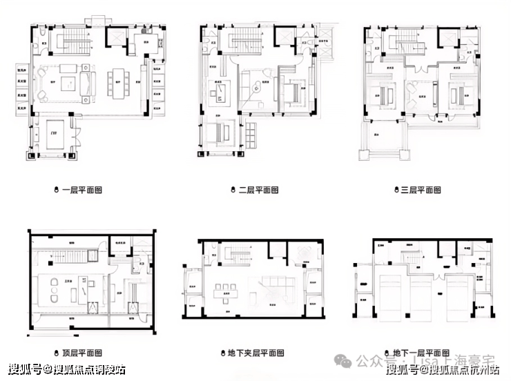
安德里
地上建筑面积:约300-370㎡
实际使用面积:580-741㎡
花园:40-157㎡
总价:3100万-4700万
套数:18套
✨上海安德里展示厅官方电话:400-8877-480(☎官方统一认证)
【售楼处预约热线】(一对一热情服务)
看房请务必致电与销售确认时间,仅预约客户可享受开发商内部优惠,专属新房预约奖!
『安德里』地处内环内杨浦滨江,四周范围南至杨树浦路,北至广州路,东至渭南路,西至眉州路。距离黄浦江仅300米。
18栋独立思想18个大家姓氏
地上建筑面积约300-600㎡公馆,面宽约13.3m,层高3.6-4m。
私园重现当代院落有双风华无双
最大约289㎡南北双院,一院一境,梦回沪上名园风姿。

✨上海安德里展示厅官方电话:400-8877-480(☎官方统一认证)
『安德里』一环一江一栋
●内环内新中心上海发展所指
●杨浦滨江CAZ坐拥百年辉煌
●海派红砖风貌梅派花园里弄
●灵动空间布局匹配峯层格局
●约13.3m面宽3.6-4m层高
●威卢克斯天窗拥揽无双视界
✨上海安德里展示厅官方电话:400-8877-480(☎官方统一认证)
●超规格三车位地库全明采光
●超规格景观3车位
●稀有独门独院约40-289㎡南北双院
●高度留白设计
●随心自由分割
●定制行政、宴请多功能场域

✨上海安德里展示厅官方电话:400-8877-480(☎官方统一认证)
区域介绍
15.5公里杨浦滨江驱动上海历史进程
滨江南段,杨浦滨江的门户核心,“世界客厅、新质秀岸”。
世界客厅新质秀岸全球与江同辉
●3大千亿级产业集群
●8000+数字经济企业
●3200亿+软件和信息服务业规上企业总营收
●美团、抖音、b站、星空华文等头部名企阵地

✨上海安德里展示厅官方电话:400-8877-480(☎官方统一认证)
杨浦滨江CAZ肇启新的百年
●人民城市首倡地,迈入国际时区
●2019年,总书记考察杨浦滨江时首次提出“人民城市人民建,人民城市为人民”
●上海市2035总体规划:杨浦滨江南段被划入CAZ中央活动区,寄予厚望
✨上海安德里展示厅官方电话:400-8877-480(☎官方统一认证)
声明:本文由入驻焦点开放平台的作者撰写,除焦点官方账号外,观点仅代表作者本人,不代表焦点立场。
