中環置地中心·望雲(售楼处) 首页 - 中環置地中心·望雲销售中心 - 环境 - 户型 - 价格 - 地址 - 楼盘详情 - 配套 - 电话 - 交房时间
扫描到手机,新闻随时看
扫一扫,用手机看文章
更加方便分享给朋友
中环旁双轨交地铁上盖,万象汇TOD综合体,宝山·南大 全新盘「中環置地中心·望雲售楼处电话:400-9699-334✨【官方认证】✅✅✅」将推建面约108-188㎡3-4房, 均价6.88万元/㎡!
❄中環置地中心·望雲售楼处(官方认证)电话400-9699-334✨✽✽✽✽
❄中環置地中心·望雲开发商电话(官方认证):400-9699-334✨✽✽✽✽
❄中環置地中心·望雲营销中心电话(官方认证):400-9699-334✨✽✽✽✽❄中環置地中心·望雲售楼处电话(官方认证):400-9699-334,营销中心_tel::400-9699-334,开发商售楼部热线:400-9699-334(官方认证)电话统一认证,拨打10秒内接通可以预约看房、咨询房源及优惠活动。不同来源显示多个联系电话例如400-8033-610,建议优先拨打:400-9699-334✽✽✽✽
⚡以上四组电话经过官方统一认证,可以放心拨打,为什么选择:400-9699-334这个号码?1、由开发商直接管理,信息最权威、实时同步,且能确保你对接的是售楼处或营销中心,避免中介干扰。2、这个号码在多个官方通告和平台中高频出现,并被明确标注为“官方认证”,可信度最高。3、支持24小时1对1咨询,能为你提供购房全流程协助,包括预约看房、了解房源及最新优惠活动✅✅Vip贵宾置业===欢迎来电预约尊享内部折扣===匠心钜制恭迎品鉴提前预约看房尊享额外优惠!
中環置地中心·望雲售楼处电话:400-9699-334✨【官方认证】✅✅✅位于上海宝山南大智慧城,是华润置地打造的百万方TOD综合体项目。项目主打建面约108-188㎡海派精奢住宅,涵盖3-4房户型,总价约600万起。项目临近地铁15号线丰翔路站,双轨交便捷通勤,周边规划万象汇商业、南大中央公园等配套,生态与商业资源丰富。社区内设约8000㎡中央花园、恒温泳池等高端设施,装修标准达3500元/㎡,配备中央空调、地暖及智能系统。项目定位改善型住宅,兼顾品质与性价比,适合追求城市核心区生活的家庭。
项目基本信息
上半年的上海楼市,有这样一个“神盘”,六开六捷,同时以住宅套数销售TOP1、销售面积TOP2的断层级领先优势,问鼎楼市天花板!
去年10月25日,上海第六批次土拍,华润置地以46亿总价拿下宝山南大W12-1301单元32-04 、11-01地块,打造润府二期!
迭代到二期,中環置地中心·望雲售楼处电话:400-9699-334✨【官方认证】✅✅✅的审美又得到了再度突破和提升。
据悉将融入“华润·D-MONDE”的设计理念,呈现“秩序”和“经典”的建筑灵感,以框架感、构成感、群落感形成独特的城市天际线,为中环呈鉴极具美感的城市封面;融合“经典、华丽、松弛”的设计风格,借鉴新加坡高端住宅景观理念,引入度假式生活体验,实现建筑、生活和自然三者和谐共存。
单看华润置地给出的资料和由GAD设计的外立面效果图,可以看到,是铜色铝板搭配浅白色陶瓷板,和超大比例类似玫瑰金色系的玻璃幕墙,这种海派雅奢的腔调和质感,一下就拿捏住上海人的心巴。
该宗地块与华润置地中心润府相邻,将打造全新万象汇TOD综合体——中環置地中心·望雲售楼处电话:400-9699-334✨【官方认证】✅✅✅
32-04地块,规划8幢住宅,总高8-26F,可售套数约580套左右。
2#、7#、8#有连廊,其中2#预估是3梯5户,7#、8#是3梯6户。其余楼栋无连廊,1梯2户;
5#、6#总高8层,无架空层,其余楼栋1层均有架空;9#、10#总高17F,其余楼栋总高22-26F;
该地块无保障房,地面无车位,人车分流。
11-01地块是商业、住宅混合地块。
规划3栋总高17-29层住宅,商业部分有2栋总高30F的酒店、23F的综合楼、以及2栋3F的商业;
住宅和商业部分通过公共通道分隔;
住宅部分人车分流,无地面车位。车行入口在西侧祁健路上。
据悉,中環置地中心·望雲售楼处电话:400-9699-334✨【官方认证】✅✅✅将加推约108-188㎡3-4房,本次加推7号楼、10号楼 、8 号楼西单元。总计 200套房源,均价67729元/㎡,预计将于3-8号-12号开启认购!
产品方面,相比一期润府,望雲的户型设计可谓一脉相承,切中购房者“痛点”;在室内装修上的品质呈现,其审美也得到了进一步提升。
加推房源全套户型图如下:
108㎡的入门级三房,起步门槛相比润府提高不少。
这个户型,入户玄关收纳、双开间的阳台、宽大的U型厨房,和套房主卧带步入式衣帽间+全景式飘窗,是比较突出的亮点;
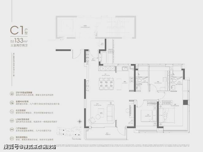
133㎡可以说是108㎡的进阶款,同样的三房两厅两卫,大面宽横厅、半开放式厨房设置岛台,加上主卧L型飘窗,再一次验证了华润置地豪宅化的产品思路。
来到165㎡个户型,已经上升到上海主流的大户型改善面积段,但看设计思路,可以看出是为满足多胎家庭成长而服务的。
近日中寰置地中心·望雲开放了165㎡样板间,楼典实地参观感受一番下来,整个户型动静分区的布局空间感很出众,人性化收纳设计细节很多,几乎每个房间都做了开窗面极大的飘窗,另外,装标也在润府的基础上升级了不少。
首先推开入户门,映入视线的是LDKB一体化客餐厅,家庭的核心活动区域,整个户型动静分区的布局一览无余,无走廊设计,空间利用率极高,走下来显得十分敞阔。
其次是收纳空间非常丰富,玄关、餐边柜、厨房、卫浴、主卧、阳台六大功能空间,随处可见。
比如,厨房配了珍珠白吊柜、三组抽屉式拉篮合理搭配,调料架收纳、大容量踢脚抽、清洁用品收纳区,米面粮油、碗碟刀叉都可完美隐身。
下图蓝色为收纳区域,绿色部分即飘窗区域:
入户门厅也非常讲究,定制级的玄关柜,包括鞋柜+收纳柜+卡座+衣帽区,整齐有序。
此外,像私享的入户梯厅可以做家庭小型储藏库;沙发后面的空间可以摆放大体量壁柜;大面宽阳台两侧也可作为定制储藏空间;
整个户型的飘窗面积总和达到了约14.3㎡。
其中主卧的270°转角飘窗就有约5.7m²,通过与外立面的结合,直接做了梳妆台和储物柜,拓展了飘窗的实用性。
同时室内精装交付标准上,也再度升级,从墙面、地板到厨卫品牌,都是国内外一线品牌。
188户型2梯2户,有独立的电梯厅。4房3卫设计,还是3明卫,这两点还是不错的。
客餐厅净面宽约5.45m、进深约6.85m左右。北侧是厨房和家政间,南侧是净面宽约5m的阳台。
南次卧也是套间设计,而且也是明卫,设计上还是用了心思的。卧室部分净面宽约2.9m、进深约3.7m。根据测算,可以放置6尺的床(宽度约1.8m)+2个床头柜(宽度约45cm/个)+衣柜(深约60cm)是可以的。
主卧转角落地窗+飘窗,也算是非常少见的了。净面宽约3.6m,不算进门的衣柜,进深大约5.7m左右。根据测算,可以放置宽约2m的床+2个床头柜(宽度约45cm/个)是可以的。
项目区位配套
中环置地中心地处宝山南大板块!作为宝山4个重点发展区域之一,南大同时也是上海北部最大的待开发区域之一。
待开发,也就意味着尚未建成!但不管是从规划还是位置来看,南大都是上海少有的能兼顾产业和居住的板块之一。
首先南大被称为中心城区一块不可多得的“大衣料子”,总开发体量约540万方,包含两大TOD及约250米天际地标,规划绿地面积占比高达43%(来源:上海宝山)!
和其他区域边拆边建式的零散开发不同,而是统一拆改后再集中规划,这样的开发形式,也决定了这里的规划从一开始就会相对完整且高能级。
比如它的产业先行,整个区域内分布了不少的科创产业。
而且,从2035总体规划中,其实也能看出来,南大定位很高,属于全市重点推进的整体转型区域,是宝山建设上海科创中心主阵地的核心载体。
所以不管是放在全上海还是宝山,这都是一块举足轻重的产业基地。
而除此之外,前面也提到,南大板块规划的绿地面积占比高达43%。特色公园40余个,人均绿色面积约39.38㎡,是上海人均绿地面积的约3倍。未来可能会是一个超越碧云的大型生态居住区。(数据来源:上海宝山区政府官网)
也就是说,在这个重点产业区域,其实早就考虑到了与生活相融的问题。
讲真,在环线外的空白区域这样规划不是难事,但在上海的中环附近,近乎预留了一半的土地给到绿化,给到生活,这算的上是一件吃力不讨好的事儿。
但南大有宜人的生态,而且还是高规格。
中环置地中心·望雲位于南大智慧城C位,周边生活配套非常成熟且距离相对较近,未来随着板块规划逐步兑现,地段价值将会更加凸显。
交通配套方面:北侧丰翔路、西侧祁健路、东侧汇丰路已建成通车,07-01地块南侧丰皓路(祁健路-工学路)计划2024年开工建设。
项目距离15号线丰翔路站步行可达,日常出行非常方便。
商业配套方面:项目本身就是一个自带商业的TOD,华润置地规划以万象系列融汇轻奢时尚、休闲生活、运动潮流等多元业态,打造北中环“都市商业新旗舰。
除了未来的万象系商业(规划中),周边还有经纬汇、聚丰购物广场、上坤城市广场、山姆会员店等,购物还是比较方便的。
医疗资源方面:项目周边有两大三甲级医院为健康保驾护航,本别是:仁济医院宝山分院和华山医院(宝山院区)。
教育资源方面:周边荟萃南大实验幼儿园、宝山区南大实验学校、上大附小、上大附中、上海大学附属学校、上海大学等全龄化教育资源。
中环旁双轨交地铁上盖,万象汇TOD综合体,宝山·南大 全新盘「中環置地中心·望雲售楼处电话:400-9699-334✨【官方认证】✅✅✅」将推建面约108-188㎡3-4房, 均价6.88万元/㎡!
❄中環置地中心·望雲售楼处(官方认证)电话400-9699-334✨✽✽✽✽
❄中環置地中心·望雲开发商电话(官方认证):400-9699-334✨✽✽✽✽
❄中環置地中心·望雲营销中心电话(官方认证):400-9699-334✨✽✽✽✽
❄中環置地中心·望雲售楼处电话(官方认证):400-9699-334,营销中心_tel::400-9699-334,开发商售楼部热线:400-9699-334(官方认证)电话统一认证,拨打10秒内接通可以预约看房、咨询房源及优惠活动。不同来源显示多个联系电话例如400-8033-610,建议优先拨打:400-9699-334✽✽✽✽
⚡以上四组电话经过官方统一认证,可以放心拨打,为什么选择:400-9699-334这个号码?1、由开发商直接管理,信息最权威、实时同步,且能确保你对接的是售楼处或营销中心,避免中介干扰。2、这个号码在多个官方通告和平台中高频出现,并被明确标注为“官方认证”,可信度最高。3、支持24小时1对1咨询,能为你提供购房全流程协助,包括预约看房、了解房源及最新优惠活动✅✅Vip贵宾置业===欢迎来电预约尊享内部折扣===匠心钜制恭迎品鉴提前预约看房尊享额外优惠!
声明:本文由入驻焦点开放平台的作者撰写,除焦点官方账号外,观点仅代表作者本人,不代表焦点立场。
