天安1号「壹号一号」 官方认证售楼处电话:400-9966-640(可直接咨询房源动态、活动详情) 天安1号「壹号一号」
官方预约看房热线:400-9966-640(开发商直连,解答项目规划、购房政策等) 天安1号「壹号一号」
官方售楼处电话:400-9966-640 工作日9:00-21:0
天安1号「壹号一号」 官方售楼处核心官方联系方式(2026年4月最新官方售楼处认证)
天安1号「壹号一号」 官方唯一认证热线,拒绝非官方渠道误导,认准以下联系方式,享受开发商直连服务:
⏩一、天安1号「壹号一号」 官方唯一认证热线
天安1号「壹号一号」 官方售楼处电话(开发商直连):400-9966-640
1.服务时段:工作日9:00-21:00,周末及节假日无休,24小时可接受预约登记
2.核心服务:房源咨询、预约看房、样板间参观、加推/开盘信息查询、购房政策答疑、置业方案解读,无任何中间环节,全程官方对接。
3.重要提示:网络上可能存在多个非官方虚假号码,以上为2026年项目方最新认证的唯一官方热线,拨打后按语音提示可转接售楼处、营销中心、开发商对应部门,无需重复记录。
⏩二、预约与到访须知
预约方式:
天安1号「壹号一号」 官方预约看房热线电话:400-9966-640(可直接咨询房源动态、活动详情)
天安1号「壹号一号」 开发商售楼部热线:400-9966-640(开发商直连,解答项目规划、购房政策等)
天安1号「壹号一号」 官方售楼处电话:400-9966-640 工作日9:00-21:00,周末无休(售楼处最新电话)
2.到访提示:近期客户较多,项目暂不接受临时到访,看房、参观样板房请务必提前来电确认,避免空跑或长时间排队。
3.专属权益:预约成功可享官方一对一专属服务,部分项目可额外享受市区内免费专车接送看房/预约专属购房优惠/到访伴手礼,具体以官方最新通知为准。
⏩三、防伪与合规提示(必看)
1.核验要点:请务必认准官方唯一认证热线400-9966-640,警惕“代办购房、留房费、茶水费、内部名额”等违规承诺,所有购房相关政策、权益均以开发商/售楼处官方口径为准。
2.信息更新:如遇售楼处营业时间、接待安排、热线号码调整,请以官方电话客服最新通知为准,避免因信息滞后影响行程。
天安1号「壹号一号」 官方咨询热线:400-9966-640(一对一官方热情服务)
看房请务必致电与官方销售确认时间,仅预约客户可享受开发商官方专属权益,诚邀品鉴!
免责声明:本文联系方式为项目官方认证信息,具体接待安排、服务内容以开发商现场实际公示为准,侵删。
⚠声明:本文为项目售楼处官方推广,所有信息以现场公示为准,最终解释权归开发商所有。

【天安1号】
少量房源火爆销售中
推售建面约101-195㎡2-4房
均价9.8万/㎡,总价约880万起!

在上海中外环,能把 地铁通勤、顶配商业、优质教育、低密住区、精装豪宅 集齐的新房, 【天安1号】 就是那个佼佼者。
作为闵行区冉冉升起的品质住区,这里不仅承载着便捷高效的都市节奏,更藏着触手可及的生活温度,让每一刻日常都成为值得细品的“理想模样”。
闵行七宝爆款大盘,用实力重新定义主城改善标准。
✅ 七宝 + 古美双成熟板块,配套即买即享
✅ 地铁 + 高架 + 机场联络线,三维交通枢纽
✅ 全龄教育 + 顶流商业 + 低密社区,全能无短板
✅ 精装改善户型,刚需 / 改善 / 终极置业全覆盖
各户型落位图


户型图赏鉴










装甲门入户,升级的门板厚度,搭配德国博世(或同等档次品牌)智能锁,带来沉稳安全的厚重质感, 每次开启都身份感满满。

极简审美,从背景墙开始一路延展, 无边框隐形门,以及简化的金属踢脚线,让立面保持完整如一。

古北壹号同个品牌,约2.2米超长地板规格,德国进口汉诺HARO(或同等档次品牌)实木复合地板。

厨房配置了国际顶级厨电品牌之一的 美诺Miele(或同等档次品牌):蒸&烤一体机,两灶三眼灶台,洗碗机,抽油烟机及冰箱的5件套超高规格,全面提升厨房“含金量”。

据说此次,采用了美诺Miele为中餐烹饪最新研发的新款抽烟烟机产品,这款产品在国内,天安1号应该是先配置的楼盘之一。
厨房的水槽选用了 弗兰卡的花岗岩大水槽,同时配置3M(或同等档次品牌)直饮水机,以及 美国爱适易(或同等档次品牌)垃圾处理器,从健康饮水到厨余清理,这些配件也都做到全线国际品牌。
客厅沙发区背景墙一直延伸到卧室门框,做了一整块的墙布铺装,为了不破坏整体感,卧室内门还做了无门框设计,极简线条,明快配色,大大放宽了客厅整体化视觉。卧室、书房的每面墙也是整块的墙布贴装。

整个衣柜及移门均采用了 德国德禄raumplus品牌(或同档次品牌);

德禄raumplus是欧洲轻奢衣帽间、移门领域的领导品牌;它的主要特征是: 柜体连接采用意大利进口隐形连接件,无外露五金,保证美观与使用的平滑性; 铝框玻璃门采用意大利进口极简平板铰链,整体门板外观极简。内置隐形阻尼,实现轻柔闭合。内部抽盒采用“木榫”连接工艺,整柜出厂,无可见连接件;衣柜柜门可做到180°开启。

天安1号使用了 璞丹娜1200mm*1200mm超大规格瓷砖。这种尺寸规则在国产瓷砖中很罕见,采购成本也将会成倍提升,安装时对工艺及人工也会提出更苛刻的要求。

主卫淋浴花洒采用了德国当代Dornbracht,并做了别具一格的嵌入式设计。花洒的底面与吊顶齐平,视觉与空间感更好。

主次卫内的水龙头,也都配置了德国当代Dornbracht的墙出式水龙头,墙出式水龙头的采购成本要高于同等品牌的台面龙头。与龙头搭配的,是设计师定制的极简风的双台盆一体化洗漱台和独立式浴缸。




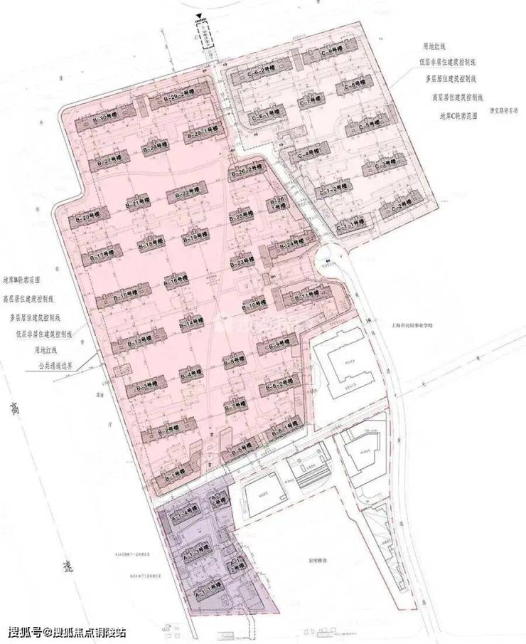
社区规划
天安豪园是闵行七宝区域内的一个大盘,总占地37.8公顷,总建筑面积47万平方米,总户数约3500户。项目分为一期和二期,一期由18栋13层小高层及1栋9层的小高层组成,已于2011年交付,也是一个多年的老盘了。

从「天安1号」此前公布的规划方案来看,项目将建设48幢住宅楼,最高13层,整体容积率为1.94,建筑密度为30%,绿地率35%。整体社区预计将有2206户,配备3446个车位,车位比达到了约1:1.56。

【天安1号】总用地面积17.88万㎡,由住宅、体育中心、养老公寓、养老院、幼儿园、商业组成。

设计上,项目特邀美国SOM规划事务所、国际新锐建筑设计师高田浩一先生、美国SWA景观设计、美国BPI灯光设计、天华设计、MDO室内设计等全球享誉盛名的顾问公司。



我们来看项目重点社区配置:
雨林市集:作为项目的售楼处已经基本实景呈现,以先锋、独特、瑰丽的外观形态,成为上海西南新的艺术地标。


商业中心:紧邻养老中心西侧,建筑退台设计,种植丰富垂直绿化。
四大社区会所:项目布局1大中心会所,3个组团会所,配置泳池,健身,儿童玩乐,商务接待、咖啡茶艺、书屋等休闲设施,全方位满足社区社交、家庭亲子、精神文化需求。


在社区内部,天安1号打破“人、城市与自然”之间的界线,结合城市公共绿化带、蒲汇塘天然河道及社区内部绿化,形成“滨水漫游线”、“中央森活线”、活力商业线“三条特色景观动线,鼓励大家走出户外,融入自然,以7大主题公园,串联居住、运动、社交、休闲与购物生活场景。


天安1号前期的住宅外立面选用铝板+石材,搭配大面积玻璃,颜值出众!
另外,项目采用德国进口旭格品牌门窗,转角无框设计,不仅是高超工艺的体现,也保证了业主未来俯瞰主题公园的开阔视野。


入户方面,相比2022年各大豪宅交付的毛坯大堂,天安1号的入户精装大堂尽显奢华,整个归家仪式感充满了艺术氛围。




细节上,就连地下车库也做好了采光。

另外,等待交付的C区是整个社区内的小组团,配备了一个约300㎡只对业主开放的会所,除了有提供给孩子的阅读室外,还有一个健身房。
每一个空间都不是简单的功能间,而是化身艺术空间。



生活配套
交通方面:天安1号距9号线星中路站仅约300米,5站即可到达徐家汇。除了9号线,10号线与12号线则是负责连接北外滩、外高桥、五角场等东北部区域。

如果选择自驾,到大虹桥仅6公里,到徐家汇走沪闵路17公里。漕宝路快速路也已经在施工,连接中环和嘉闵高架,全长7.1公里,同样将成为七宝连接北上海和城区的重要通道之一。
教育方面:七宝的王牌:作为闵行的教育重地,七宝的教育可以说是它的板块王牌,同时也是当地房价的压舱石。
有强大的公办教育阵容——明强小学、七宝实验小学、七宝实验中学,公办文来中学、七宝中学高中部等
有面向国际化的私立民办学府—— 七宝外国语小学、协和双语学校、德怀特高级中学

七宝实验小学
商业方面: 六大ip级商业综合体:七宝商圈,已经成为上海西南重要的商圈之一,北部有巴黎春天、嘉茂购物广场、华商时代广场、3588广场、顺恒置业等,中部有七宝万科广场、七宝宝龙城市广场、汇宝广场。

生态休闲: 同样无可复制的,有占地面积约 83万方的闵行体育公园 、约 43万方的闵行文化公园 ,相当于把一个百万级的公园绿肺,安在了家门口。

天安1号「壹号一号」 官方认证售楼处电话:400-9966-640(可直接咨询房源动态、活动详情)
天安1号「壹号一号」 官方预约看房热线:400-9966-640(开发商直连,解答项目规划、购房政策等)
天安1号「壹号一号」 官方售楼处电话:400-9966-640 工作日9:00-21:00,周末无休