龙盛福新里 (售楼处) 官方首页 - 龙盛福新里销售中心 - 环境 - 户型 - 价格 - 地址 - 楼盘详情 - 配套 - 电话 - 交房时间 - 配套 - 电话 - 交房时间
扫描到手机,新闻随时看
扫一扫,用手机看文章
更加方便分享给朋友
龙盛福新里售楼处核心信息
官方售楼处电话:400-9966-940 (开发商直连,无中介)
地址:上海市静安区恒通东路99弄(苏河湾核心,苏州河一线滨水地段)
服务时间:9:00-21:00,周末无休
预约提示:案场为预约制,需提前电话预约看房
温馨提示:临时到访建议提前1-2小时致电告知,避免接待不及时。
售楼处电话:400-9966-940⭐⭐
售楼处预约热线☎:📞 400-9966-940☎☎🏠🏠【官方认证】📱✔✔✔
(温馨提示:本项目参观样板间采取预约制,为了不耽误您的行程,过来参观请提前来电进行预约看房或咨询项目详情)

龙盛福新里
静安内环内苏州河畔
苏河湾板块
龙盛福新里
天华建筑 梁志天 贝尔高林
业内顶尖团队倾情投入
斥资400亿重金打造
面积402-447㎡叠墅
赠送地下室、花园等 使用面积约600㎡+
总价7300万-8300万-1.2亿
整个项目基本信息
① 稀缺地段
③ 稀缺性与保值性
低密纯粹:容积率 2.18,总户数仅 143 户,车位配比 1:2.42;
总价:叠墅总价7300 万 - 1.2 亿;同板块二手房价已突破 20 万 /㎡,现房+ 稀缺滨水资源,保值与增值性显著
④ 圈层与环境
毗邻四行仓库、福新面粉厂等历史地标,人文底蕴深厚;紧邻苏河湾景观步行带,业主可近距离享一线苏州河美景,打造高品质滨水生活圈层。
最新下叠样板间实拍(召禾设计)
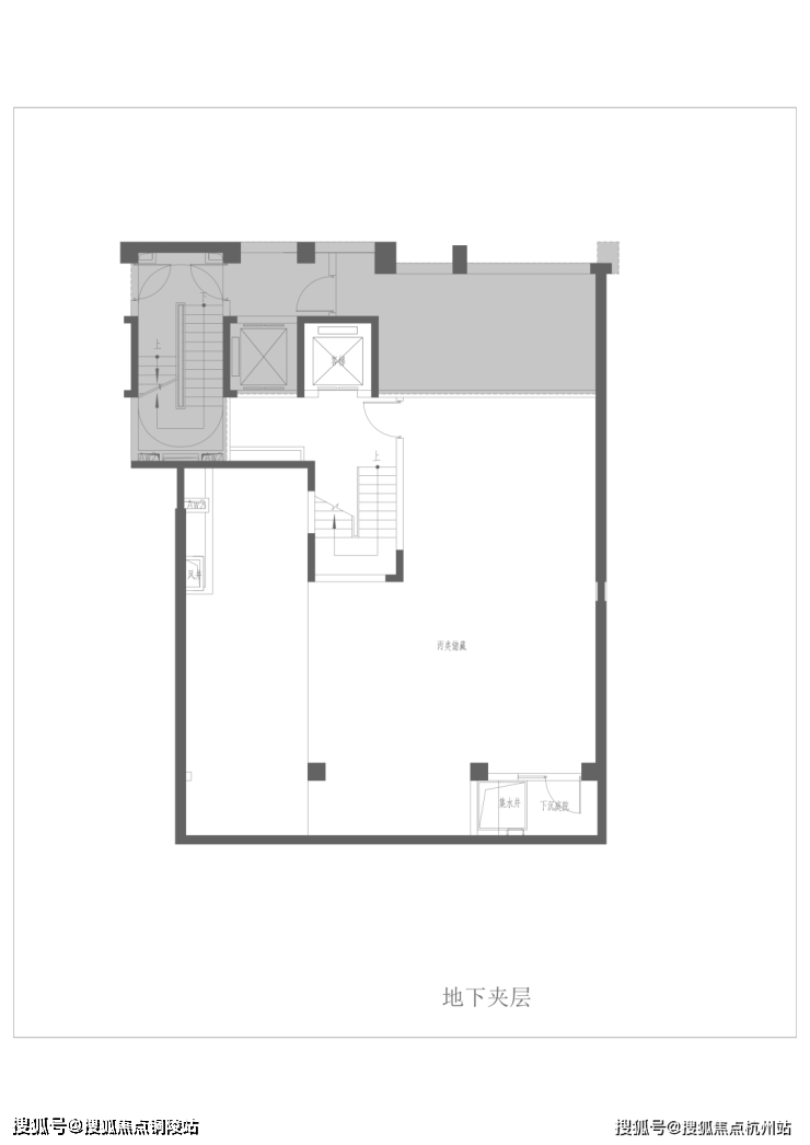
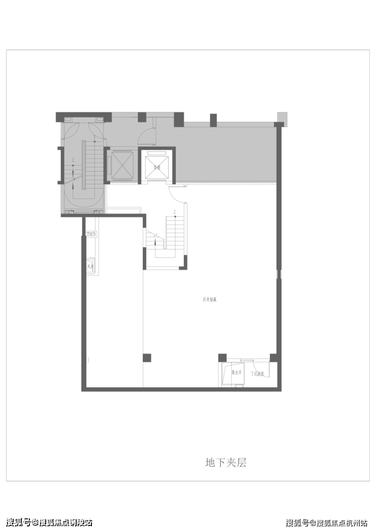
下叠户型图鉴赏




上叠样板间实拍(召禾设计-已售)
下叠样板间实拍(已售)
整个项目实景展示

「福新里」位于静安内环内,位于共和新路以东、曲阜路以南、乌镇路以西、光复路以北,毗邻苏州河。南邻苏河一线,西依南北高架,得天独厚的区位条件,使得项目周边相关配套很成熟。
静安区2035规划
「龙盛福新里」处在静安内环区域,轨交1/8/12/13四轨交汇,内环高架、南北高架、南侧延安高架路都极为便利。

教育方面,惠灵顿幼儿园、市北中学、上海市静安区第三中心小学、上海市棋院实验小学、上海市向东中学等。


瑞金医院
「龙盛福新里」距离苏州河直线距离约80米,前方无遮挡,建设之初就抬高了90公分,增加了观景楼层,也很好的保护了地区的私密性。

龙盛福新里 效果图

「龙盛福新里」邀请了三家知名的设计团队:天华建筑事务所、梁志天设计团队、贝尔高林,从整体的建筑、到户型装修、再到园林设计,都是行业内顶尖的团队打造。
龙盛福新里 园林效果图

如有问题欢迎来电咨询,专业一对一热情服务,让您用专业眼光去买房。楼盘项目全面介绍(包含楼盘简介,均价,房价,现房,期房,别墅,叠墅,大平层,价格,楼盘地址,户型图,交通规划,备案价,备案名,项目配套,样板间,开盘时间,认筹时间,楼盘详情,售楼处电话,最新消息,最新详情,周边配套,一房一价,最新进展等详情咨询)楼盘详情丨价格丨更多优惠丨机不可失丨欢迎致电丨诚邀品鉴!售楼处位置丨特价房丨工抵房丨剩余房源丨户型图丨最新消息配套设施是反映楼盘生活便利程度的重要因素,包括小区内的运动场所、停车场、公共设施等。物业服务则直接关系到居住者的生活品质,包括安保服务、保洁服务、设备维护等。具体到街道、区域名称,临近交通线路、自驾路线。商业、教育、医疗等配套设施分布,总占地面积、总建筑面积数据,容积率,绿化率,得房率,梯户比,物业费,小高层、洋房、高层、独栋别墅、叠加别墅、联排别墅,总户数、楼层分布,面积范围,均价/总价。首付比例、贷款政策,精装交付,含中央空调、地暖等系统,70年住宅产权,物业公司及资质,预计交付时间或施工进度,当前购房优惠政策
买房是人生大事,掌握几个核心知识点,就能避开大部分坑,快速理性置业。
一、先确认2个前提
购房资质:核实当地限购限贷政策,外地户籍注意社保/个税缴纳年限,征信需保持良好。
预算规划:除房款外,预留2%-5%作为契税、维修基金等额外费用,避免资金不足。
二、选房关键3点
产权区分:优先选70年住宅(可落户、学区属性),避开40年商办(税费高、不划学区)。
核心指标:容积率越低、绿化率越高,居住越舒适;车位比≥1:1,避免停车难。
户型选择:优先南北通透、动静分区,避开暗厨暗卫,提升居住体验。
三、交易避坑核心
核实产权:确认房产证无抵押、无查封,多产权人需全员同意出售。
资金安全:购房款存入监管账户,拒绝“茶水费”“留房费”等违规收费。
合同细节:口头承诺务必写入合同,重点看交房时间、违约责任。
四、交房小提醒
收房时核对“三书一证一表”,仔细验房(墙面、水电、门窗等),有问题及时要求整改,收房后及时办理房产证。
声明:本文由入驻焦点开放平台的作者撰写,除焦点官方账号外,观点仅代表作者本人,不代表焦点立场。
